广佛论坛蒲友交流
深圳市德寶制冷壓縮機裝備無限公司
承包建設項目凍庫建設項目、里邊熱水器建設項目指導思想/裝制及醫養
問詢電話
18925267191
深圳市德寶制冷裝備無限公司
網站首頁
對于德寶
公司簡介
企業文明
接洽咱們
冷庫工程
保鮮冷庫
冷藏冷庫
速凍冷庫
醫藥冷庫
物流冷庫
速凍地道
速凍平板冷庫
車間污染
車間加工中間
冷庫裝備
制冷機組系列
冷庫涼風機系列
冷庫工程系列
品牌緊縮機系列
海鮮冷水機系列
冷凝器系列
制冷配件系列
旋片式真空泵系列
制冷配件
工程案例
消息資訊
公司消息
行業靜態
接洽德寶
接洽體例
400-0000-0000
網站首頁
對于德寶
公司簡介
企業文明
接洽咱們
廣佛論壇蒲友交流:冷庫工程
保鮮冷庫
冷藏冷庫
速凍冷庫
醫藥冷庫
物流冷庫
速凍地道
速凍平板冷庫
車間污染
車間加工中間
冷庫裝備
制冷機組系列
冷庫涼風機系列
冷庫工程系列
品牌緊縮機系列
海鮮冷水機系列
冷凝器系列
制冷配件系列
旋片式真空泵系列
制冷配件
工程案例
消息資訊
公司消息
行業靜態
接洽德寶
接洽體例
您的地位:
網站首頁
>
冷庫裝備
>
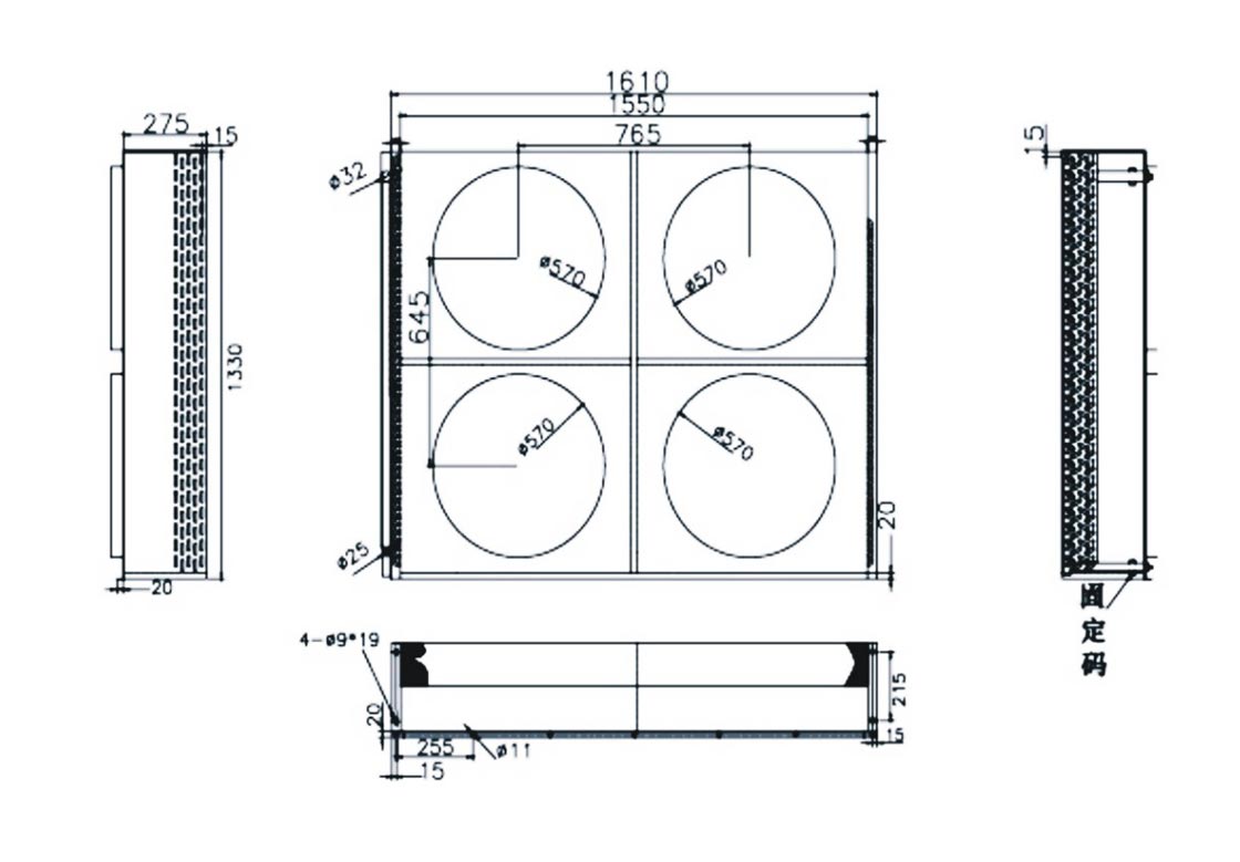
冷凝器系列
檢查分類
冷凝器系列
制冷機組系列
冷庫涼風機系列
冷庫工程系列
品牌緊縮機系列
海鮮冷水機系列
冷凝器系列
制冷配件系列
旋片式真空泵系列
高效冷凝器
上一條:
柜式v型冷凝器
下一條:
高效冷凝器
主營地區